370 E Main Street, Ansonia, CT 06401 (MLS # 24165972)

370 E Main Street, Ansonia, CT 06401 (MLS # 24165972)


Save to Favorites
Print
Share

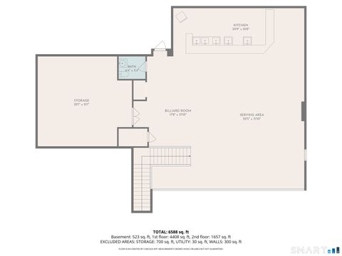
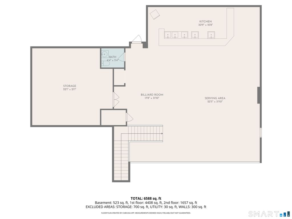
"The Spot" - Club, restaurant, and bar with full kitchen, extensively remodeled in 2023. Offering approximately 6,588 sq ft total per floor plan, the space features a second-floor mezzanine overlooking the main level, multiple bars, LED lighting, and updated sound and video systems. Sound and video systems to remain. Originally upgraded in 1990 with recent renovations in 2023. Located in an HI zone.

DAYS ON MARKET 10 LAST UPDATED 4/10/2026
YEAR BUILT 1970 COUNTY New Haven
STATUS Active PROPERTY TYPE(S) Commercial


ADDITIONAL DETAILS
AIR Central Air
AIR CONDITIONING Yes
CONSTRUCTION Brick, Concrete
HEAT Forced Air, Natural Gas
LOT 0
LOT DESCRIPTION Cleared
SEWER Public Sewer
TAXES 10065
WATER Public
ZONING HI
MORTGAGE CALCULATOR
   

TOTAL MONTHLY PAYMENT

0
P
I
*Estimate only

SATELLITE VIEW



 
CONTACT US ABOUT 370 E MAIN STREET
 / 
We respect your online privacy and will never spam you. By submitting this form with your telephone number you are consenting for Madhu Reddy to contact you even if your name is on a Federal or State "Do not call List".

Listing courtesy of RE/MAX Right Choice
Copyright Smart MLS. All rights reserved. Information is deemed reliable but not guaranteed to be accurate.

This IDX solution is (c) Diverse Solutions 2026.