7 Owl Court #7, Avon, CT 06001 (MLS # 24157395)
|
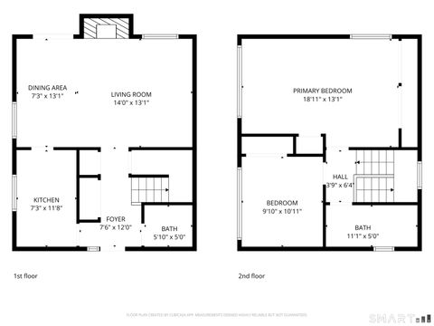
WATERFRONT! Wake up to peaceful water views and the quiet beauty of Stub Pond right outside your door! This direct waterfront home in the Pond Place community is a great opportunity enjoy nature, walking trails, and waterfront living in one of Avon's most desired spots. 2-bedroom, 1.5-bath home with hardwood floors throughout, a gas fireplace, and a glass slider leading to a spacious deck overlooking the pond. The two-car garage with walk-up storage offers excellent space for vehicles, outdoor gear, and water toys. Pond Place is a 210-home Planned Unit Development set on more than 70 wooded acres, bordering open space and scenic Stub Pond. Residents enjoy pickleball/tennis courts, walking trails, and a community designed to blend with the natural landscape. Investor opportunity: This unit has been a successful rental for the past five years, offering a strong option for buyers seeking an income-producing property (no STR).
| DAYS ON MARKET | 1 | LAST UPDATED | 3/4/2026 |
|---|---|---|---|
| YEAR BUILT | 1978 | GARAGE SPACES | 2.0 |
| COUNTY | Hartford | STATUS | Active |
| PROPERTY TYPE(S) | Condo/Townhouse/Co-Op |
| Elementary School | Per Board of Ed |
|---|---|
| High School | Avon |
| ADDITIONAL DETAILS | |
| AIR | Central Air |
|---|---|
| AIR CONDITIONING | Yes |
| AMENITIES | Insurance, Snow Removal |
| APPLIANCES | Dishwasher, Gas Range, Refrigerator |
| BASEMENT | None |
| CONSTRUCTION | Frame, Vertical Siding |
| EXTERIOR | Dock, Tennis Court(s) |
| FIREPLACE | Yes |
| GARAGE | Yes |
| HEAT | Forced Air, Natural Gas |
| HOA DUES | 650 |
| LOT | 0 |
| LOT DESCRIPTION | Waterfront |
| PARKING | Off Street |
| SEWER | Public Sewer |
| STORIES | 2 |
| STYLE | Townhouse |
| TAXES | 5386 |
| VIEW | Yes |
| VIEW DESCRIPTION | Water |
| WATER | Public |
| WATERFRONT | Yes |
| WATERFRONT DESCRIPTION | Pond |
| ZONING | IP |
MORTGAGE CALCULATOR
TOTAL MONTHLY PAYMENT
0
P
I
*Estimate only
| SATELLITE VIEW |
| / | |
We respect your online privacy and will never spam you. By submitting this form with your telephone number
you are consenting for Madhu
Reddy to contact you even if your name is on a Federal or State
"Do not call List".
Listing courtesy of Rosehaven Real Estate, LLC
Copyright Smart MLS. All rights reserved. Information is deemed reliable but not guaranteed to be accurate.
This IDX solution is (c) Diverse Solutions 2026.