151 Pumpkin Hill Road, New Milford, CT 06776 (MLS # 24142136)
|
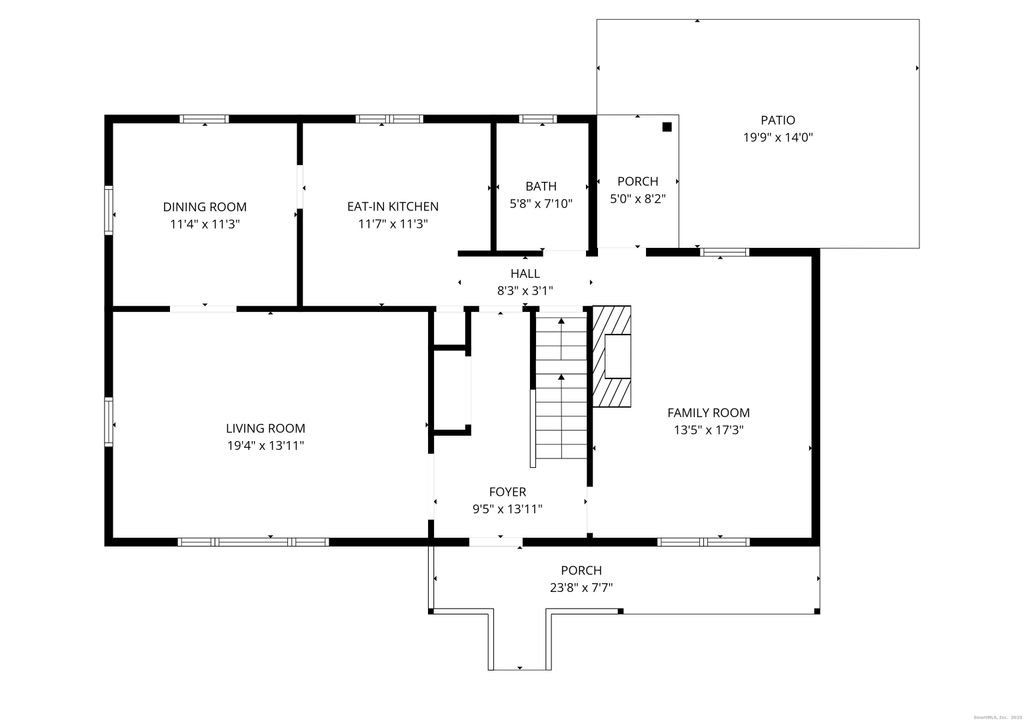
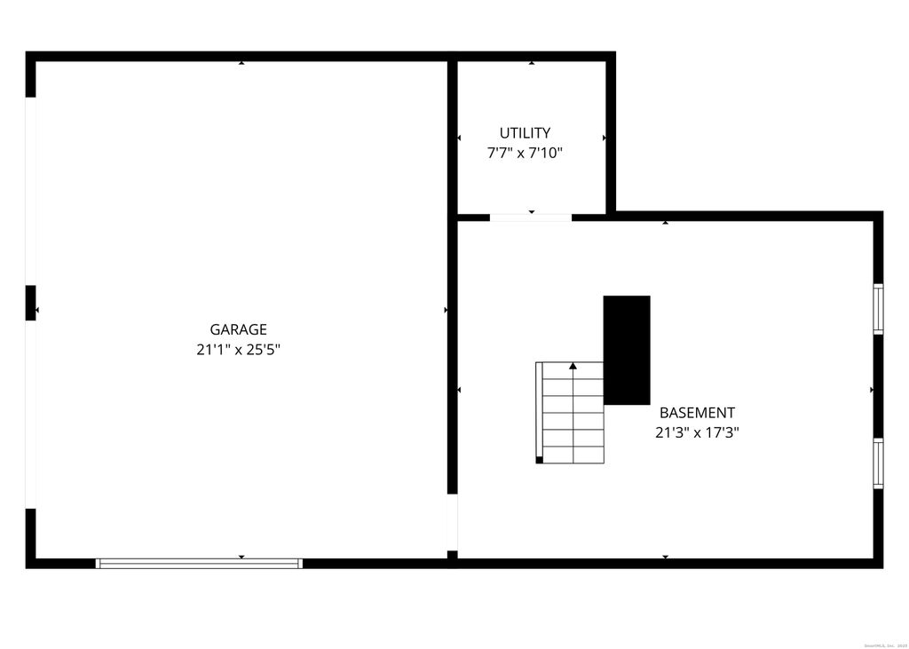
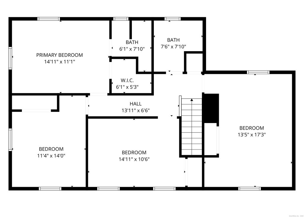
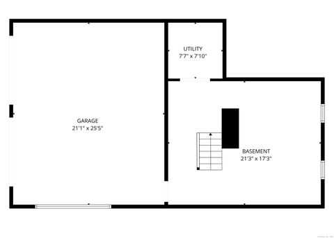
This well-maintained 4-bedroom Colonial is located in very Southern New Milford and offers great curb appeal along with many great features. The home features oak hardwood floors throughout most of the home, a large family room with a wood-burning brick fireplace, and a classic dining room. The updated kitchen includes stainless steel appliances, granite countertops, a tiled backsplash, and a breakfast area. The primary bedroom offers a full bath and a walk-in closet. Additional highlights include first-floor laundry, detailed woodwork throughout, newer furnace and hot water heater, generator-ready setup, large 2 car garage, wood siding and nicely landscaped grounds with attractive stonework. Enjoy seasonal winter views and an excellent commuting location just minutes to the new connector. Nothing to do but move in-this Colonial is ready for its new owners.
| DAYS ON MARKET | 1 | LAST UPDATED | 12/6/2025 |
|---|---|---|---|
| YEAR BUILT | 1977 | GARAGE SPACES | 2.0 |
| COUNTY | Litchfield | STATUS | Active |
| PROPERTY TYPE(S) | Single Family |
| Elementary School | Per Board of Ed |
|---|---|
| Jr. High School | Schaghticoke |
| High School | New Milford |
| ADDITIONAL DETAILS | |
| AIR | None |
|---|---|
| APPLIANCES | Dishwasher, Oven, Range, Refrigerator |
| BASEMENT | Full, Unfinished, Yes |
| CONSTRUCTION | Frame, Wood Siding |
| FIREPLACE | Yes |
| GARAGE | Yes |
| HEAT | Hot Water, Oil |
| INTERIOR | Central Vacuum |
| LOT | 0.94 acre(s) |
| LOT DESCRIPTION | Rolling Slope |
| PARKING | Garage Door Opener |
| SEWER | Septic Tank |
| STYLE | Colonial |
| TAXES | 6320 |
| WATER | Well |
| ZONING | R40 |
MORTGAGE CALCULATOR
TOTAL MONTHLY PAYMENT
0
P
I
*Estimate only
| SATELLITE VIEW |
| / | |
We respect your online privacy and will never spam you. By submitting this form with your telephone number
you are consenting for Madhu
Reddy to contact you even if your name is on a Federal or State
"Do not call List".
Listing courtesy of RE/MAX Right Choice
Copyright Smart MLS. All rights reserved. Information is deemed reliable but not guaranteed to be accurate.
This IDX solution is (c) Diverse Solutions 2025.