211 Macktown Road, Windsor, CT 06095 (MLS # 24134079)
|
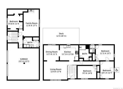
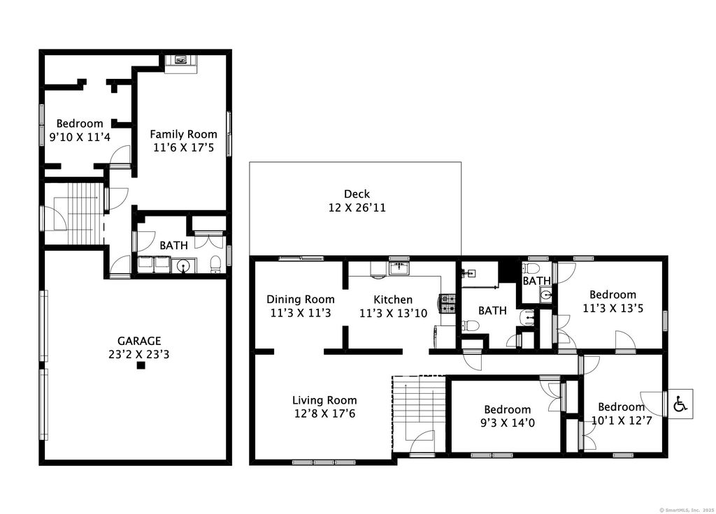
Spacious 4-bedroom, 2.5-bath Raised Ranch offering over 1,800 sq ft of living space, set on a generous 0.65-acre lot in one of Windsor's most sought-after neighborhoods. This home features a flexible layout with great potential, including a walk-out lower level with a cozy fireplace in the family room, a bedroom, and a half bath - ideal for an in-law suite or multi-generational living. Currently configured with 1 full bath and 2 half baths, offering opportunity for customization. Additional highlights include a 2-car garage, a newer Weil-McLain boiler and hot water heater, and a peaceful backyard perfect for outdoor living. With some updates and personal touches, this home could truly shine. Priced to sell and brimming with potential, this is a great opportunity to build equity in a fantastic location. Please note: Home needs some work and may not qualify for FHA, VA, or CHFA financing. Being sold as-is.
DAYS ON MARKET | 2 | LAST UPDATED | 10/16/2025 |
---|---|---|---|
YEAR BUILT | 1978 | GARAGE SPACES | 2.0 |
COUNTY | Hartford | STATUS | Active |
PROPERTY TYPE(S) | Single Family |
Elementary School | Oliver Ellsworth |
---|---|
Jr. High School | Sage Park |
High School | Windsor |
ADDITIONAL DETAILS | |
AIR | Window Unit(s) |
---|---|
AIR CONDITIONING | Yes |
APPLIANCES | Dishwasher, Dryer, Electric Range, Electric Water Heater, Range Hood, Refrigerator, Washer |
BASEMENT | Finished, Full, Yes |
CONSTRUCTION | Frame, Vinyl Siding, Wood Siding |
FIREPLACE | Yes |
GARAGE | Attached Garage, Yes |
HEAT | Hot Water, Oil |
LOT | 0.63 acre(s) |
LOT DESCRIPTION | Level |
PARKING | Paved, Private, Driveway, Attached |
SEWER | Public Sewer |
STYLE | Raised Ranch |
TAXES | 6138 |
WATER | Public |
ZONING | R1 |
MORTGAGE CALCULATOR
TOTAL MONTHLY PAYMENT
0
P
I
*Estimate only
SATELLITE VIEW |
/ | |
We respect your online privacy and will never spam you. By submitting this form with your telephone number
you are consenting for Madhu
Reddy to contact you even if your name is on a Federal or State
"Do not call List".
Listing courtesy of RE/MAX Precision Realty
Copyright Smart MLS. All rights reserved. Information is deemed reliable but not guaranteed to be accurate.
This IDX solution is (c) Diverse Solutions 2025.